Používame cookies

Súbory cookie a ďalšie technológie sledovania používame na zlepšenie vášho zážitku z prehliadania našich webových stránok, na to, aby sme vám zobrazovali prispôsobený obsah a cielené reklamy, na analýzu návštevnosti našich webových stránok a na pochopenie toho, odkiaľ naši návštevníci prichádzajú. Viac info

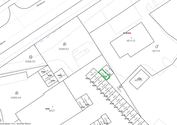
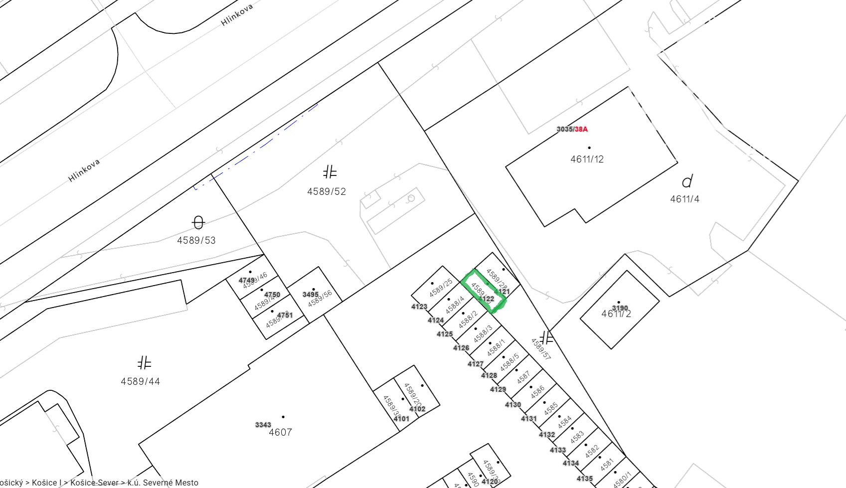
Garáž na predaj 18m², Čárskeho, Košice - Sever

Popis nehnuteľnosti

Zdieľať na Facebooku

🚗 Na predaj: Garáž na Čárskeho ulici, Košice – Sever.

Hľadáte vlastný parkovací alebo úložný priestor blízko centra mesta?

Táto garáž na Čárskeho ulici ponúka výbornú lokalitu, jednoduchý prístup a bezpečné využitie – ideálna pre motorku, bicykle alebo ako praktický sklad. Doplnenie: Strecha je po rekonštrukcii.

📍 Lokalita: Košice – Sever, Čárskeho

📐 Výmera: 18m². Bez pozemku. Pozemok Mesta KE.

💰 Cena: zahŕňa všetky poplatky

📞 V prípade záujmu ma kontaktujte.
V Košiciach sa hovorí – garáž nad zlato!

Vlastnosti

Status:
aktívne
Vlastníctvo:
osobné
Úžitková plocha:
18 m2
Zastavaná plocha:
18 m2
Stav:
pôvodný stav
Celková plocha:
18 m2

Hypotekárna kalkulačka

21 500 €
Ulica: Čárskeho
Mestská časť: Mier
Obec: Košice-Sever
Okres: Košice I
Kraj: Košický kraj
Druh: Objekty
Typ: Predaj
Typ objektu: Garáže a parkovacie miesta

Radi Vám poradíme